编者按:近年来,各种新型家用录象机大量上市,其中有不少型号的录象机售价已接近47厘米彩色电视机的售价,这样就刺激了销费者踊跃购买,使录象机在我国的社会拥有量迅速增加。但是,录象机的维修技术力量却很薄弱,再加上录象机的平均无故障工作时间远低于彩色电视机,所以,录象机维修难的矛盾将日益突出,想了解和掌握录象机的维修技术的人也越来越多。为了满足读者的迫切要求,我们选择了日立426E这个在社会拥有量较大的机型,从本期开始连续介绍该机各系统电路的工作原理及检修方法。
日立VT—426E和VT—427E型录象机是我国目前市场上最为常见的新型录象机之一(427E机是426E机的改进型,主要改进了遥控器的设计和功能。两者主要结构大体一样,本文同样适用于427E机,下面只写426E机),也是社会拥有量最多的机型之一。在我国录象机定点生产厂引进的录象机中,426E机属主要机种之一,其生产(组装)规模和国产化率均名列前茅,因此维修备件较有保障,学习和掌握该机的维修技术也较为方便。这里先对426E机的主要结构特点和各系统配线图作一介绍,这是维修前所应该和必须了解的。

426E机的主要结构特点
426E机主要是在日立VT-136E型录象机的基础上改进而成,其性能和功能与松下NV—G30相似,而VT—136E机大体与松下NV—G12型机处于同一档次。早期产品VT—330、340、660等型日立录象机(分别类似于松下NV—370、NV450)则比VT—136E机要低一个档次。426E机的机械和电路的主要特点是:
1.在机械结构上,采用了所谓ZZ底盘(机芯),特点是可使机座高度降低。426E机的高度为81mm,比采用UY底盘的136E机小14mm,因而外形更为美观,体积和重量也减小了。
2.采用了“半装载”机构。该机构使录象机在快进和倒带时,磁带始终紧贴于音频/控制磁头运行,从磁带控制磁迹上拾取CTL(控制)信号和检索(INDEX)信号,以便实现自动检索录象带节目的功能(此功能与收录机的电脑选曲功能有点相似)。426E机虽然采用半装载机构,但计数器仍只计带盘旋转脉冲,并不能反应走带时间,这与同样采用半装载机构的松下NV—G20、G33、L10、L15等型录象机不同,这类录象机的计数器可以直接显示走带时间(精确到秒),使用的方便性优于带盘计数器。
3.整机使用3个电机,比136E及之前的日立录象机少用一个电机。3个电机是:鼓电机、装载(上带)电机和主导轴电机,其中主导轴电机兼任装盒和出盒电机。磁鼓电机和主导轴电机均是DD(直接驱动Drect Drive)电机,电机与负载同轴连接,能降低磁鼓和录象带的抖晃率,提高声象质量,并延长机械系统的使用寿命。
4.在电路结构上,426E机注重于HQ(高画质)技术,使整机的图象水平清晰度和信噪比均优于一般家用录象机,其中水平清晰度指标为(彩色)260线(一般240线),信噪比达43dB(一般40dB)。428E机的采用的HQ技术主要为:(1)在亮度信号处理电路中,对白峰电平切割量由原VHS标准规定的160%增加到200%,以改善亮度信号的脉冲前沿,使图象黑白变化边缘清晰,因而画质提高。(2)采用亮度信号垂直处理器YNR(Y Noise Reducer,意为亮度信号噪声抑制器),使亮度信号的信噪比改善3dB以上。该机的YNR电路与失落(信号)补偿电路共用一个数字式电荷耦合器件(CCD)制成的1行延迟线(IC203,HT4664A),具有一物双用之效。该机的失落补偿电路设置在频率解调之后,是对解调后的亮度信号进行补偿(这与松下G33等型机相似),而以往的录象机大多将失落补偿电路设置在频率解调之前,是对调频信号进行补偿。
5.426E机的电源部分仍是传统的变压器降压及厚膜集成块稳压的形式,无电源电压自动选择功能,只可通过选择开关在105、120、210、220、240V等几档中选择一档使用。早期的426E机,其电源部分设计不太适合我国的实际供电情况,因而容易引起电源变压器及主导轴电机驱动集成电路等元器件损坏,后期的426E机大都作了改进。
6.426E机有3个视频磁头,2个磁头用于正常录、放象,另1个为特技重放(静止、慢动作重放等)。该机无一般录象机均有的结露(潮湿)检测保护功能。它采用的机构状态开关为旋转式开关。426E机的电视接收电路的频道调谐方式为自动电压合成式,可预选79个频道,其操作比松下录象机普遍采用的手动电压合成式调谐电路要来得方便。
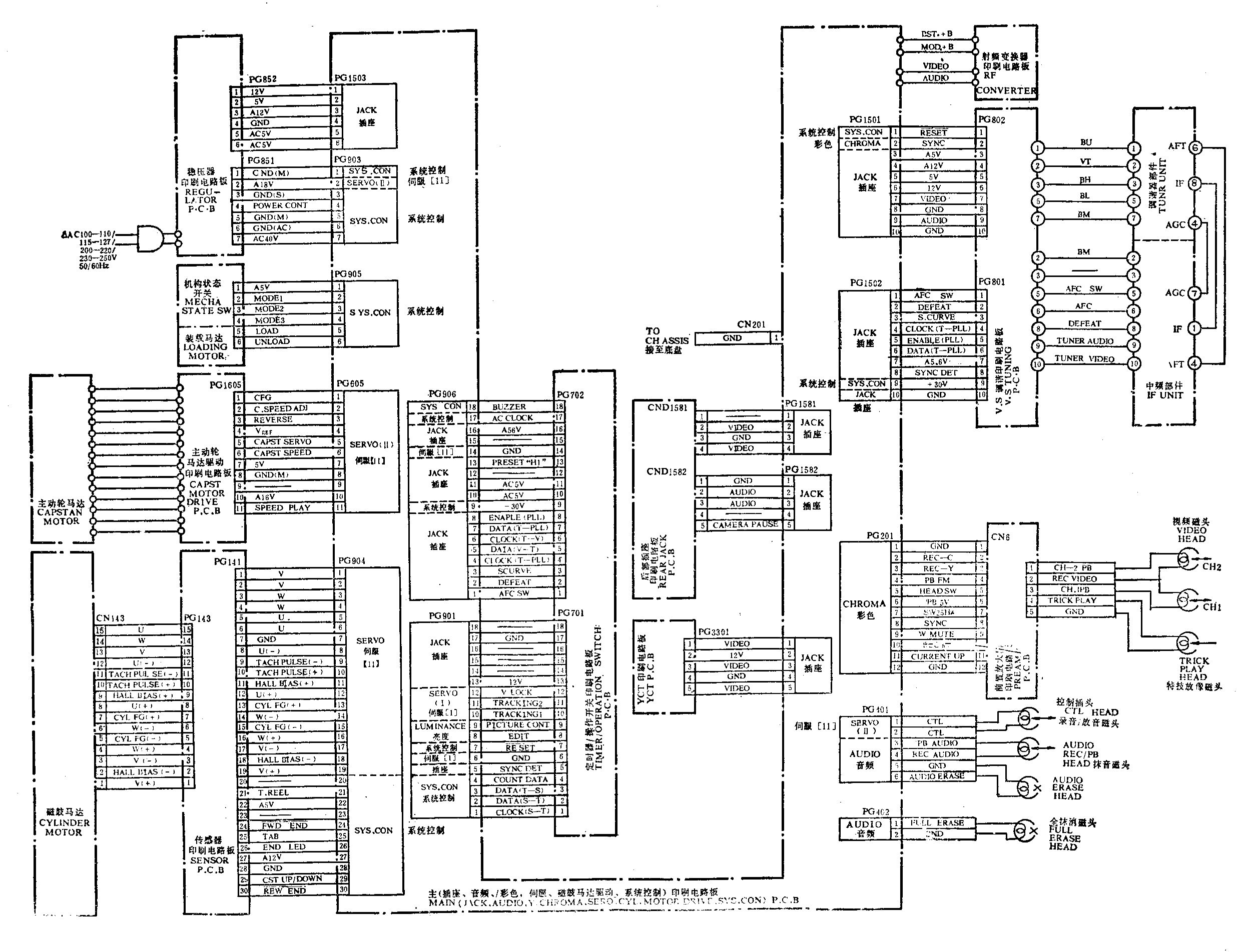
426E的各系统配线图
这里示出426E机的各系统配线图。从该图中可清楚地看出该机各系统电路中采用的印制电路板及主要部件,它们之间的连接关系和接插件代号、连接线编号名称等也一目了然。该图对理解下面文章中的内容及日常维修426E机都是甚为重要的。(王德沅)