平板型扬声器是一种平面驱动振动板式的低音扬声器,它的声辐射面呈平板状,性能较优异。用平板扬声器制作的音箱,外形美观、音色优美,常常与高档的放音系统相配合作用,这种音箱在国外已颇为流行。目前国内已有些厂家开始生产这种扬声器,本文向读者详细介绍平板型扬声器箱的业余制作方法。
平板扬声器的特点
所谓平板型扬声器,并不是说整个扬声器的形状象一块平板状,在这里是指它的振膜的运动方式象一块平板在平行运动。它与一般锥形纸盆扬声器相比,具有如下特点:
1.锥形纸盆扬声器和平板型扬声器的振膜推动方式示意图见图1。可以看出,锥形纸盆扬声器由于纸盆呈锥体状,声波在传递时,纸盆锥体上的每一个点都是一个点声源,这样,声波在纸盆前面的空腔中就会互相干涉,使频率特性变坏,反映在声压频响特性曲线上就是出现峰与谷。这就叫前室空腔效应。前室空腔越深,峰越尖锐,频响特性变得越坏。平板型扬声器由于振膜运动呈活塞式,是平行运动的,不存在前室效应,所以频响特性很平坦。

2.锥形纸盆扬声器纸盆锥体的张角不能太大,也不能太小。张角大小时锥体空腔加深,频响变差;张角太大时纸盆刚性不好,振动时容易产生畸变,失真加大。平板型扬声器则没有上述两个缺点,它没有前腔效应,电声转换系统的刚性也较好。
3.平板型扬声器的相位特性较好。我们知道,平板型扬声器的振动膜是一个平面,振动膜上各个点声源到达聆听者耳朵的相位是一致的(见图1),因此聆听时乐音层次清晰,各声源定位效果较好。锥形纸盆上各个点声源发出的声音是相互干涉的,相位特性较差,使人感到临场感不好。
4.平板型扬声器产品一致性好,纸盆扬声器则不容易做到这一点。
扬声器单元的选择
本文介绍的音箱是一个二单元组合扬声器箱,低音单元采用深圳市深华电子有限公司生产的飞镝牌YDP—200A型(8英寸)平板扬声器。这种扬声器的主要技术性能为:额定功率10瓦;额定阻抗8欧;谐振频率fo≤50赫(实测小于45赫);频率响应fo~7000赫(实测频率高端都不低于9000赫);谐波失真小于5%;灵敏度87±2分贝。
音箱的高音单元采用YD—76球顶型高音扬声器,它的频响为2500赫~20千赫。
分频器的设计

根据高、低音扬声器单元的频响特性,该音箱的分频点选择在3000~3500赫之间即可。分频电路选用图2形式。由于平板型低音扬声器的灵敏度比球顶型高音扬声器的灵敏度低,因此在分频电路中接高音扬声器的一端要串接衰减器。一般说来衰减量可选择在2~3分贝。如果要求音箱的低音效果更明显些,衰减量可适当增加一些。衰减量的选择见附表。

分频器中的电容器采用无极性的。电感线圈L的线径不要小于0.9毫米。
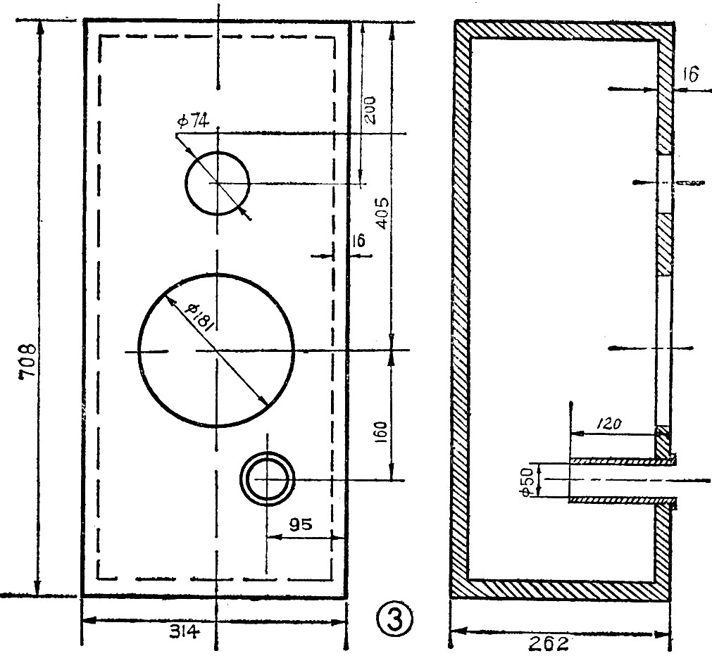
音箱制作注意事项
1.整个音箱的尺寸可参考图3加工。要想充分发挥音箱的低音效果,所用木板的厚度不得小于10毫米。

2.音箱后盖板的里侧应参照图4所示的两种方案加设加强筋,以免音量加大时后盖颤动产生异常的声音。

3.在音箱的内壁上应粘贴上吸音材料,如玻璃纤维、泡沫塑料、粗毛毡等。

图5为音箱的频率特性曲线,可供参考。该音箱的额定阻抗为8欧,与它相配用的扩音机或收录机的输出阻抗也应为8欧。另外,有些自制的或从市场买的质量较差的扩音机,开机时冲击电流较大,容易损坏音箱,应引起注意。有关音箱及套件的邮购办法请见本刊今年第1期第48页的邮购消息。(郭诚忠 李文锋)