Visio 2003家居设计实例详解
数码时尚
Visio是一个图表绘制程序,它可以帮助你创建说明和组织复杂设想、过程与系统的业务和技术图表。使用Visio创建的图表使你能够将信息形像化,并能够以清楚简明的方式有效地交流信息。Visio包括了机械工程、建筑设计图、组织结构图等16种绘图类型,这里我们以时下最为流行的家居设计为例,说明Visio的使用方法与技巧。
一、“个人天地”单间设计
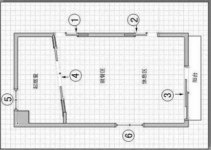
实例说明:王小姐拥有一个仅25平方米的一居室。她希望充分发挥有限空间的作用,布置成一个小小的安乐窝:既当起居室,又兼作餐厅,还要当客厅,不时与朋友小聚。如图1所示。
图1
1.户型结构规划
我们先来画出单间墙壁、壁柱与阳台。如果是商品房,可参照开发商提供的平面布置图绘制房间结构。如果没有平面布置图,可以自己量一下尺寸。
(1)准备工作
启动Visio,在出现的“选择绘图类型”列表中,选择“建筑设计图”类别的“家居规划”模板。
点击“文件→页面设置”菜单命令,在出现的“页面设置”对话框中,点击“打印设置”选项卡,设置“打印纸”为“纵向”;点击“页面尺寸”选项卡,设置“页面方向”为“纵向”;再点击“绘图缩放比例”选项卡,选择“预定义的缩放比例”项,在下拉列表中选择比例为“1:10”。现在,可以在“页面尺寸”项中看到绘图区为“5.94×8.41”,是近50平方米,已经足够大了。点击“确定”按钮。
(2)新建墙壁
点击“形状”区的“墙壁、外壳和结构”类目,拖曳一个矩形“房间”到绘图区。我们可以调节形状周围的8个矩形控制点,以更改大小,调节圆形控制点,以旋转它的方向。
右键点击“房间”形状,选择“属性”命令,在出现的“自定义属性”对话框中,设置“宽度”为3.5m,“高度”为6.9m。点击“确定”按钮后,将“房间”移动到绘图区中央。
在离最上面墙壁2米处,还有一段内墙。在“墙壁、外壳和结构”类目中找到“墙壁”项,拖到房间左侧墙壁。设置属性为“墙长”0.7m,“墙厚”120mm,点击“确定”按钮。
注意:墙分外墙和内墙。外墙一般为24墙,即240mm,内墙为一般12墙,即120mm。外墙是承重墙,也有个别内墙承重,这样的墙就会厚一些。承重墙不可拆迁!
(3)添加壁柱
在“墙壁、外壳和结构”类目中找到“拐角壁柱”形状,拖到房间左上角。设置属性为“截面宽度”0.5m,“截面深度”0.45m。然后移动壁柱,与房间左上角的内侧对齐。
(4)绘制阳台
由于Visio提供的形状里没有阳台,需要我们自行绘制。
点击工具栏上的“绘图工具”按钮 ,在出现的工具栏中选择“矩形工具”,在图形下方绘制宽3.4m,高0.6m的阳台。
至此,单间的墙面部分就建好了。接下来,我们应该添加上门窗。考虑到房间空间太小,我们将门都设计成推拉门。在图1中都做好了相应编号,请参照操作。
(5)添加通向走道与阳台的门
在“墙壁、外壳和结构”类目中找到“凹槽门”形状,拖放2次,放置凹槽门①②到右侧墙壁。右键点击凹槽门②,选择“向左打开/向右打开”命令,反转门的打开方向。
在“墙壁、外壳和结构”类目中找到“旁通门”形状,拖到房间下面的墙壁。设置属性为“门宽”2100mm,点击“确定”按钮。这样,通向阳台的③号门,就安装好了。
提示:门的一般宽度是600~900mm。③号门通向阳台,因此尺寸选择最小。
(6)添加窗户
在“墙壁、外壳和结构”类目中找到“窗户”形状,拖放2次,分别放置在上面与左面的墙壁。在“自定义属性”对话框中,⑤号窗户设置为900mm 的“滑窗”,左侧的⑥号窗户为2100mm的“大型落地窗”。
注意:选中“门”或“窗”形状后,可看到其两侧各有一个红色的控制手柄,表示它们已经吸附在墙壁上。当移动墙壁时,吸附在其上的门和窗会一起移动。
(7)将起居室与活动区分隔
即使喜好与朋友共聚,但还是需要有自己小小的私密空间。因此,我们将在起居室与休息区间添加一个隔板,装上双凹槽门。当餐桌多人就餐时,就拉上双凹槽门使之隔开。而当一人在家或睡觉时,就可以打开它,使空间显得较为宽敞。双凹槽门可以是磨砂玻璃材质,使整个空间更有气氛。
在“墙壁、外壳和结构”类目中找到“墙壁”形状,拖到内墙右边。设置属性为“墙厚”50mm,这就是隔板了。找到“双凹槽门”形状,拖动到隔板上,设置属性为“门宽”1800mm。这样,隔板④就安装好了。
至此,整个房间结构就搭建完毕。
2.布置家居
我们现在要为这个小居室划分功能了。因为面积太小,所以,我们用家具来分隔出各个功能区。如图2所示。
图2
(1)布置起居室
点击“形状”区的“家具”类目,拖曳1张“可调床”、1个“双联梳妆台”到起居室。将床顺时针旋转90度,靠右上角放置。梳妆台因地制宜,放置在壁柱与内墙之间。
为了使床上被褥和部分用品有可放置的地方,同时为了更好地隔开个人小天地,我们在床下安放1个20厘米高的平台,这个平台带有滚轮式抽屉。当然,因为起居室的不规则性,这个平台我们也得自己绘制。点击“绘图工具”中的“铅笔工具”,绘制一个直角梯形。调节梯形四周的菱形节点,使它正好铺满起居室。
至此,起居室布置完毕。
(2)用家具分隔就餐区与休息区
活动区分为就餐区与休息区。如何将就餐区与休息区分隔开来?我们将橱柜摆放在了活动区中间。橱柜是高柜,成了天然的隔离屏障。橱柜与两边墙壁的距离,使得就餐区与休息区间留下了两边“行走空间”。在“模具库”中,也没有合适的橱柜,需要自行绘制。
点击“绘图工具”中的“矩形工具”,绘制一宽(1m)一窄(0.7m)2个矩形,并排放置在活动区中间。现在,就餐区与休息区已经分隔开了。然后在就餐区与休息区之间,放置1个陈列柜,上面可以放置一些饰品,以体现主人品味,下面可以作鞋柜。
参照图2,用“绘图工具”绘制1个矩形窄条作为陈列柜,在图1所示的门①与门②之间,紧靠右侧墙壁放置。
点击“形状”区的“柜子”类目,拖曳1个“衣橱”到就餐区。紧靠内墙放置。
提示:因为起居室空间狭小,不可能放置太多东西。所以衣柜就放在就餐区。日常衣物可放在床下的平台下,怕揉怕皱的衣物可放置在外面的衣柜里。
从“家具”类目中,拖曳1张“矩形桌”,4个“凳子”到就餐区,拖曳1个“沙发”到休息区,顺时针旋转90度,紧靠橱柜放置;用“绘图工具”绘制1个玻璃小几,用来放置一些常用物品。例如,遥控器、水果盘、几本书、一盆花等;拖曳1张“矩形桌”休息区右下方作为电视柜,适当旋转,靠墙角放置;拖曳1个电视机,旋转调节,放到柜子上;拖曳一盆室内植物放到“休息区”左下角。
阳台就不需要特别布置了。从“家具”类目中拖曳几盆植物,放置在阳台上即可。
现在,“个人天地”家居规划草图就做好了。
3.替设计图着色
黑白的规划图略显单调,我们可以给它点“颜色”看看。对每个图形元件都可分别设定其线条颜色(外轮廓色)和填充颜色。
(1)用颜色区分空间
点击选定床下的“平台”,设置其“填充颜色”为橙色。
点击“墙壁、外壳和结构”类目,拖曳一个“空间”到起居室位置。调节“空间”大小,使它覆盖整个居室。右击“空间”,选择“形状”命令中的子菜单,使该空间位于平台上方,床与梳妆台的下方。点击选定“空间”,设置其“填充颜色”为淡绿色。
因为空间是半透明的,起居室部分就成了橙色斜纹,而活动区则为浅绿色斜纹,轻易区分出了这两块空间。
(2)调配颜色
所有的墙,包括外墙与内墙,全部是黑色。阳台是淡黄色;床是浅绿色,餐桌是淡黄色;沙发的填充色是橙色,线条颜色为白色;植物填充色是绿色,线条颜色为橙色。其余颜色不变。
4.在设计图中添加标注
最后,我们要为房间加上标注,包括尺寸标注与家具说明。
(1)尺寸标注
在“墙壁、外壳和结构”类目中找到“控制器尺寸”形状,拖曳到左侧的墙边。拖动两个绿色的小矩形,使它们与墙的上下对齐,出现红色对齐标识,即说明已经对齐。按下Ctrl+Alt组合键,放大标注线中部,看到一个标注:“7m”。
注意:这里与我们做的3.5m×6.9m不符,主要是因为精度的关系。
右击标注,选择“精度和单位”命令,在出现的对话框中将“精度”选择为“0.0”(即精确到十分位)。点击“确定”按钮后,返回绘图区,尺寸已经成了6.9m。继续选定标注,在工具栏中设置“字体”为黑体,“字号”为48。用同样的方法,标注房间的宽度。
尺寸标注完成,如果希望标注小的尺寸,例如,柜子的尺寸,可以用同样的方法做精细标注。
(2)家具说明
有些家具是从模具库中直接调用的,有些家具是自己绘制的,为了使家具看上去更直观,我们需要加上说明文字。
点击工具栏上的“文本工具”,为各家具添加说明文字。“字体”为黑体,“字号”为48。
(3)添加标题
最后,在右侧为整个规划图添加标题:“个人天地家居规划图”,“字体”为黑体,“字号”为80。
“个人天地”的整个家居规划完成。
二、“单身贵族”家居设计
实例说明:范先生是SOHO一族,上班地点就是家里。一个人居住着约50平方米的一室一厅,希望有独立而宽敞的工作空间。因工作时间没有规律,吃饭时间也不固定,平时下厨很少,所以范先生希望厨房能变成款待朋友与自娱自乐皆可的场所。客厅的家具布置要灵活舒适。如图3所示。
图3
1.户型结构规划
现在,我们将范先生提供的平面结构图扫描入电脑,并重新规划房间结构。
(1)扫描图纸
进入Visio的“家居规划”模板,新建一个文件。
点击“文件→页面设置”菜单命令,在出现的“页面设置”对话框中,点击“打印设置”选项卡,设置“打印纸”为“纵向”;点击“页面尺寸”选项卡,设置“页面方向”为“纵向”;再点击“绘图缩放比例”选项卡,选择“预定义的缩放比例”项,在下拉列表中,选择比例为“1:20”。点击“确定”按钮。
将平面结构图扫描入电脑,保存成“*.JPG”格式。在Visio中点击“插入→图片→来自文件”菜单命令,将平面结构图导入。
注意:请确定平面结构图的比例也是1:20。如果不是,请在导入后自行调节。空间从模具库中直接拖出后,其尺寸为3m×3m,可以用它来做参照。
(2)制作户型
右击导入的平面结构图,选择“格式→图层”命令,打开“新建图层”对话框,在“图层名称”中输入“底图”,点击“确定”按钮返回“图层”对话框。可以看到,“在以下的图层上”的图层列表中出现的“底图”图层已经被选中,点击“确定”按钮返回绘图区。
提示:可以用同样的方法更改对象放置的图层。
我们希望将底图固定,以使其不会因误操作所移动。点击“视图→图层属性”菜单命令,打开“图层属性”对话框。选中“底图”层的“锁定”选项。
下面,我们用辅助线划分区间。拉出辅助线,以外墙外侧为准,将墙的所有基线划分出来。默认的情况下,辅助线到了底图的下面。如果希望辅助线到前面,按下Ctrl+A组合键选定所有的辅助线,点击右键,选择“形状→置于顶层”命令。
在“形状”区的“墙壁、外壳和结构”类目中,拖曳一个“空间”到左上角,调节空间,使它与辅助线对齐。用同样的方法,拖曳4个“空间”出来,调节后,使它们对齐辅助线,如图3所示。
接下来,将空间转换为墙壁。用“指针工具”划出一个选取框,选定所有“空间”,点击右键,选择“转换为墙壁”命令,在出现的对话框中,选择“墙壁形状”为“外壁”选项,在“设置”中选择“添加尺寸”选项,在“原始几何图形”中选择“转换为空间形状”选项。
我们看到,所有的空间已经转换为外墙,并且添加了尺寸标注。是不是感觉标注字体太小?单个更改又太麻烦,可以用以下方法统一更改:
点击“编辑→按类型选择”菜单命令,在出现的对话框中选择“图层”选项。然后在“图层”列表中选择“尺寸”层,点击“确定”按钮。现在,所有的标注都已经被选择了。在工具栏中设置“字体”为黑体,“字号”为36。右键点击标注,选择“精度和单位”命令,在出现的对话框中的精度下拉列表中,选择“0.0”。最后,将不必要的标注删除。
至此,所有的空间上都有说明文字“办公空间”,并标有面积。我们不需要这些。右击“空间”形状,选择“设置显示选项”命令,在出现的对话框中点击“空间”选项卡,将所有的显示标签都设置为“禁用”。
最后,进门通道周围的空间因为很不规则,我们当时没有用“空间”覆盖。现在把这一块补上。在“墙壁、外壳和结构”类目中,拖曳一个“空间”到进门通道处,点击右键,选择“自动调整大小”命令,现在,该“空间”已经自动调节,与其他空间完全贴合了。右击该“空间”,将基置于底层。选定所有“空间”,在工具栏点击“线条颜色”,将其设置为“无线条”。
(3)重新规划房间结构
考虑此户型的使用者为一单身男性,并结合房屋结构特点,可以考虑拆除一些封闭的空间。
因为主人为男性,单人居住,可以不用安装卧室门,以利用墙体的不完整闭合来营造一种流动的空间形式;主人对厨房的要求更多的是它的休闲功能,所以将厨房的一面隔墙拆除,改造成开放式的厨房,与客厅一起形成自由的大空间;将较小的一间房改做书房兼工作间,并且将两房中间的非承重墙打掉,用推拉门门来分隔。打开门,与整个空间是一个整体,关上门,就营造了独立的工作空间,
根据以上思路,我们将重新设计整个布局。如图4所示。
图4
(4)重新设计门窗
我们需要修改已经做好的房间结构。在上面,使用空间创建的都是外墙。在室内显然有一些内墙,我们结合新的规划思路,边制作边把它们更正过来。在Visio中有两种更正方法:一种是看着图纸改,另一种是把墙壁半透明化,以参照下面的底图来修改。下面,我们以后一种方法为例。
点击“视图→图层属性”命令,打开“图层属性”对话框,点击“墙”层的“颜色”栏,这一栏会被选中。在“图层颜色”中,选择一种颜色作为该层中对象的颜色(墙一般是黑色或灰色)。滑动下面的“透明度”滑杆,或直接在输入框中输入一个数值。这里是25%,点击“确定”按钮。
因为墙体属于两个层:墙和建筑围护。所以,要想将墙透明化,必须将建筑围护层也用同样的方法设置,或者将它设为不可见,否则,只设置一个层没有效果。
通过上面的设置,我们已经可以透过半透明的墙看到底图了。
根据底图与设计思路,打掉厨房的一面隔墙;将浴室的内墙部分修改厚度为120mm;将进门处的非承重墙打掉,换成“Z”字型隔板,厚度为50mm,高度为120mm。如图4的标号⑤处。
现在开始重新设计门窗。除大门外,其余的门全部改成推拉门;工作间的窗户设计成落地窗,提供充足光线,营造办公氛围;厨房的窗户为门式窗,使得整厨房与客厅部分敞亮通透。
我们在第一个实例中,已经讲述过添加门窗和更改其属性的方法。请根据图4按照表1提供的门窗资料,为房间添加门窗。然后,在图层中将底图设为不可视。
表1 “单身贵族”门窗资料汇总
序号 |
类型 |
宽度(mm) |
序号 |
类型 |
宽度(mm) |
|
① |
滑窗 |
1500 |
⑥ |
门式窗 |
900 |
|
② |
大型落地窗 |
900 |
⑦ |
单滑动门 |
1800 |
|
③ |
双凹槽门 |
1800 |
⑧ |
枢轴窗 |
600 |
|
④ |
单悬门 |
900 |
⑨ |
滑窗 |
600 |
|
⑤ |
隔板 |
50 |
⑩ |
凹槽门 |
900 |
2.布置家居
户型结构规划好后,开始布置家居。如图5所示。
图5
(1)布置卧室
卧室很简单,一张舒适的床(1600mm×2000mm),一个床头柜。它们都可以从“家具”模具库中找到,请参见图5。
(2)布置工作间
相比卧室而言,工作间反而要花更多的心思。对于SOHO一族,电脑、电话、打印机、扫描仪等设备是必不可少的。要将它们摆放周全,大的工作台面不可少。另外,如果有客人来,可以到工作间展示作品,所以要有沙发。当然,还要有书柜以收纳资料。最后在工作角落里摆放一盆室内植物,使书房有了盎然的绿意。
因为在“形状区”没有办公设备,所以我们需要从其他模具库中调出。点击“工具栏”上的“形状”按钮,依次指向“建筑设计图→办公室设备”,打开该模具库。同样的方法将“办公室家具”模具库打开。
从“办公室家具”模具库中,拖曳1个扇形“圆角”到工作间。右击该形状,选择“形状→垂直翻转”命令,然后将“圆角”放置在工作间右上角;拖曳1个矩形“工作台面”到工作间,与“圆角”紧靠放置;拖曳1个“椅子”到工作台面的前面;拖曳1台“PC监视器”、1部“电话”、1台“打印机”到工作台面。PC监视器放正中,电话放右手边,打印机在圆角上;拖曳1个“书柜”到工作间,放置在左上角;拖曳1个“沙发”到工作间,面向落地窗放置;拖曳1盆“室内植物”放置在工作间右下角。
提示:工作台面下还可以放置文件柜。如果是矮柜,还可以在文件柜上面放置扫描仪。
(3)布置浴室
浴室里除抽水马桶与洗手盆之外,还要有一个舒适的浴缸。这里我们没有采用固定式浴缸,而是选用了带有四足的独立浴缸,由于浴缸底部是架空的,又可以移动位置,所以空间显得通透一些。此外,可以考虑地面铺设带有木纹的面材,减弱卫生间冰冷的感觉,而选择造型简洁的洁具能增加时尚感。
从“卫生间和厨房平面图”模具库中,拖曳“浴缸1”到浴室,放置在下方;拖曳1个“盆”与1个“抽水马桶”到浴室,与浴缸相对,靠墙放置。最后用“绘图工具”中的“矩形工具”,制作一个正方形地毡,旋转放置在浴室内。
(4)布置厨房兼餐厅
因为不常煮饭,主人对厨房的要求更多的是它的休闲功能。与厨房联系的餐厅部分是一个带圆形端头的吧台,这样安排既体现了主人时尚生活的要求,又节约了相当的就餐面积。
从“家电”模具库中,拖曳1个“双门冰箱”到隔板左下方。接下来,定制吧台。因为带圆形端头的吧台是定制的,当然需要自己制作。这就用到了Visio一系列的绘图工具与形状操作工具。点击“铅笔工具”,绘制并调节形状,如图6所示。
图6
注意:使用“铅笔工具”沿直线拉动可以绘制直线,沿曲线拉动可以绘制样条曲线,而且直线也可以调节成曲线。移动吧台到厨房,调节图形,使它上面与冰箱对齐,右侧与下面贴齐厨房的外墙。
由于我们希望圆形吧台的一侧是平直的,所以还需要处理:
点击“矩形工具”,绘制一个矩形,覆盖圆形吧台的下侧需要剪掉的圆弧部分。点击“指针工具”,按住Shift键不放,将这两个图形全部选定,点击“形状→操作→修剪”菜单命令,然后将多余部分删除。用“指针工具”划出一个选择框,选定吧台部分所有图形,右键点击,选择“形状→组合”命令即可。
最后放置厨具与凳子。从“家电”模具库中,拖曳“炊具1”到吧台右侧,旋转180度靠墙放置;拖曳3个“凳子”,围绕吧台放置。
(5)布置客厅
厨房兼餐厅布置好了,我们看看客厅还能如何布置。
靠客厅一角的地方有一扇小窗,可以利用那里的充足光线做一个午后小读。客厅的主要空间里可以安放1件带转角的长体沙发。靠阳台的地方可以放置电视。不过,这里没用传统的电视柜或电视墙,取而代之的是带立柱的可转式电视柜,用玻璃隔板将电视隔开。上面可以放置书籍或饰品,下面可以放DVD播放机、遥控器等。这样布置能最大限度满足主人的休闲需要。
布置午后小读区。从“家具”模具库中,拖曳1个“安乐椅”到客厅窗户位置,30度旋转放置,调节其尺寸为0.6m×0.6m。点击“矩形工具”,绘制1个矩形作为收纳杂物的小几,旋转30度后在安乐椅前。
绘制长体沙发并存入模具库。点击“矩形工具”,绘制一个长条矩形。按住Ctrl键不放,拖动矩形,再复制3个出来,调节长度与方向,将这4个矩形排列并放置,如图7中的①所示。选定所有矩形,点击“形状→操作→联合”菜单命令,将这几个矩形融合成了一个图形。
图7
提示:因为要参照矩形查看对齐情况,请选定图形,在工具栏中将填充色设置为无。
点击“矩形工具”,按住Shift键不放,绘制一个正方形。再用同样的方法,再绘制2个出来,并排放置,再制作一个较大的正方形,放置位置如图7中的②所示。选定大正形与大正方形覆盖的小正方形,点击“形状→操作→修剪”菜单命令,将多余的线条删除,效果如图7中的③所示。将刚刚制作好的沙发放置在客厅左下角,并在前面放一个圆形小几。
如果我们希望将沙发存入模具库,以方便以后调用,请执行如下操作:
点击“文件→形状→新建模具”菜单命令,左边的模具库中即出现在新建的模具库。点击“指针工具”,选定沙发,拖动到新建的模具库。就会出现一个名称为“主控形状”的模具。点击名称,将其名称更改为“转角沙发”。
如果关闭该模具库,系统会提示:是否保存对该模具的更改?点击“是”按钮后,将模具库保存在“我的文档→我的形状”中。如果下次希望调用该模具,可以通过点击“工具栏”的“形状”按钮,从“我的形状”中找到。
放置电视机并制作可转式电视柜。点击“矩形工具”,绘制一个矩形,旋转放置在客厅右下角作为电视柜。从“家电”模具库中,拖曳1个“电视机”并旋转放置在电视柜上。
3.替设计图着色
在上例中,我们已经学过如何为规划图上过色。在这里,我们采用另一种方法来制造清新流畅的感觉,那就是完全用线条表现,除墙体外,家具都不上色。
点击“编辑→按类型选择”菜单命令,在出现的对话框中选择“图层”选项。点击“全部”按钮将所有图层选中,再剔除底图、墙、建筑围护、尺寸、门、窗层,点击“确定”按钮。点击工具栏上的“填充颜色”按钮,选择“无填充”。用同样的方法,选择“墙层”与“建筑围护”层,更改填充色为黑色。最后,在上面为整个规划图添加标题“单身贵族家居规划图(一房一厅)”。主标题“字体”为黑体,“字号”为80。次标题“字体”为黑体,“字号”为48。
至此,“单身贵族”的整个家居规划完成
三、“三口之家”温馨设计
实例说明:张先生一家三口,买房之初就是看准了该户型(图8)朝阳面多的优点,而且厨房的阳台很实用,更重要的就是室内的隔墙为非承重的,所以可改造的余地很大。
图8
张先生希望好好地将它改造一番。现在面临的问题是:首先,厨房面积比较小,主要是通道占用了不少空间,爱人是个居家主妇,就餐区在客厅里,离厨房太远。其次,除了夫妇俩的卧室以外,还多出儿子的卧室如何设计的问题。最后,王女士特别要求家里设计简洁,物品能摆放有序,儿子则要求有自己的小天地。
1.户型结构规划
(1)扫描图纸
进入Visio的“家居规划”模板,新建一个文件。
点击“文件→页面设置”菜单命令,在出现的“页面设置”对话框中,点击“打印设置”选项卡,设置“打印纸”为“纵向”;点击“页面尺寸”选项卡,设置“页面方向”为“纵向”;再点击“绘图缩放比例”选项卡,选择“预定义的缩放比例”项,在下拉列表中,选择比例为“1:20”。点击“确定”按钮。
将平面结构图扫描入电脑,保存成“*.JPG”格式。在Visio中点击“插入→图片→来自文件” 菜单命令,将平面结构图导入。
(2)制作复杂的户型结构
因为户型较为复杂,而且室内的隔墙大多为非承重墙,所以我们先统一把外墙建起来。
将平面结构图作为底图。右击导入的平面结构图,选择“格式→图层”命令,在出现的对话框中点击“新建”按钮,新建“底图”图层,点击“确定”按钮返回绘图区。点击“视图→图层属性”菜单命令,打开“图层属性”对话框,选中“底图”层的“锁定”选项。
用辅助线划分区间。同样,以外墙外侧为准,拉出辅助线,将墙的所有基线划分出来。按下Ctrl+A组合键选定所有的辅助线,点击右键,选择“形状→置于顶层”命令。
点击“铅笔工具”,沿辅助线勾出轮廓。有的转折处可能会画成弧线,不要紧,通过调节线段中间的小圆点,更改成直线。轮廓勾出来后,会自动闭合。选定该图形,设置其“填充色”为“无填充”,放大调节各线段,使它们与底图外轮廓吻合。
注意:在勾轮廓时,要勾大形,像左侧飘窗的外墙,以及在右侧多出来的不规则图形,都可以在后面添加。
先建外墙。从“墙壁、外壳和结构”类目中,拖曳1个“空间”到结构图上,点击右键,选择“自动调整大小”命令,现在该“空间”已经自动调节,刚刚绘制的外轮廓完全贴合了。
用“指针工具”划出一个选取框,选定所有“空间”,点击右键,选择“转换为墙壁”命令,在出现的对话框中,选择“墙壁形状”为“外壁”,“设置”项中选择“添加尺寸”,“原始几何图形”中选择“转换为空间形状”,点击“确定”按钮。
选择所有标注,在工具栏中设置“字体”为黑体,“字号”为36。右击标注,选择“精度和单位”命令,在出现对话框中的精度下拉列表中,选择“0.0”。将不必要的标注删除。 右击“空间”,选择“设置显示选项”命令,点击“空间”选项卡,将所有的显示标签都设置为“禁用”。
再补内墙。内墙的制作也要借助铅笔工具与空间。我们先来看如何为一个规则的空间添加内墙,再来看如何为一个不规则的空间添加隔板。
先看左上角的主人房,是规则的正方形,左上角已经建了外墙,需要建右下角的内墙。点击“铅笔工具”,沿主人房的右下角绘制一个反“L”形,使这两条直线与外墙相接。从模具库中拖曳一个空间出来,用“指针工具”调节,使它与主人房的外侧重合。右击空间,转换成内墙。可以将左上角多余的内墙删除。
再看餐厅拐角处的隔板。左侧隔板虽然在后面要被打掉,现在我们还是先建起来。这次,我们要使用“L”形空间。
用同样的方法,参考底图,用“铅笔工具”沿隔板绘制一个不规则的五角形,再将“L”形空间拉一个放置到该处。不同的是,用“指针工具”简单的拉伸或缩放已经不能满足需要,而要调节单个节点。还是用“铅笔工具”,调节“L”形空间的各个顶点,使它与不规则的五角形重合,然后再将该空间转换成内墙。删除多余的内墙,再更改其余的厚度为50m,隔板就建好了。
添加门窗。门窗变动不大,除了打掉客厅转角处墙体,并将原来的单悬门换成推拉门外,其余均依照原来的设计制作。上面已经介绍过添加门窗和更改其属性的方法。请根据图9按照表2提供的门窗资料,为房间添加门窗。然后,在图层中将底图设为不可视。
表2 “三口之家”门窗资料汇总
序号 |
类型 |
宽度(mm) |
序号 |
类型 |
宽度(mm) |
|
① |
庭园窗 |
1500 mm |
⑦ |
滑窗 |
900mm |
|
② |
单悬门 |
900 mm |
⑧ |
单悬门 |
600mm |
|
③ |
单悬门 |
600 mm |
⑨ |
凹槽门 |
900mm |
|
④ |
单悬门 |
900mm |
⑩ |
单悬门 |
900 mm |
|
⑤ |
枢轴窗 |
600mm |
11 |
旁通门 |
1800mm |
|
⑥ |
庭园窗 |
1500 mm |
12 |
庭园窗 |
2100mm |
户型结构图制作完毕后,如图9所示。
图9
2.布置家居
现在开始布置三口之家的家居。
(1)布置主人房
主人房的卧室风格追求的是一种沉稳的简约。一块整板将床头柜与床身联系在一起,并且设计了足够的储物空间。床、床头柜可以在家具“模具”库中找到,定制的衣柜与储物柜,请自行制作,参见图10。
图10
(2)布置小孩房
儿子的卧室充分体现儿童兴趣广泛的功能要求。儿童床放置窗前可以方便通风采光,书桌和书架都很简洁,卧室中铺设一块地毯,很适合儿童多动的习性,座椅可以自由活动,方便清扫。床、书桌、书柜、椅子可以在家具“模具”库中找到,地毯请自行制作。
(3)布置浴室
浴室中各项器具都可以在模具库中找到,需要简单说一下设计风格。
浴室的色调对比很明快,暗色马赛克满铺,统一的白色洁具。镜面是无框式的,镜前灯的方体造型与镜面融为一体。在材质的选择上,尽可能体现一种硬朗的现代都市风格。
(4)布置厨房与餐厅
餐厅为开敞式设计,与客厅和厨房都有开放式的联系,有自然光线,是很好的就餐区域,并且桌体可以自如伸缩能满足多人进餐的需要。
除去了靠近入口处隔墙的厨房与餐厅融为了一体,其中一段橱柜也被放置在了餐厅里,成为厨房的延伸部分。厨房油烟可以考虑通过两处的门来解决,其中,去往餐厅的门为三扇,不用时可以推进墙内。厨房的小阳台可以作为洗衣区,既能解决上下水的问题,又能方便晾晒。
用绘图工具制作厨房的转角台面。从“家电”模具库中,拖曳“炊具1”到台面右侧,旋转放置;从“卫生间和厨房平面图”模具库中,拖曳“盆”到台面左侧;从“家电”模具库中,拖曳“洗衣机”到阳台上;用绘图工具制作隔断后面的橱柜、餐桌。
(5)布置客厅
原有客厅的布局是一个带“刀把”的长条区域,虽然空间不算小,但使用起来仍显局促。所以打掉了部分隔墙,特别是将转角处的墙体打掉,这样做一方面视线得到了释放,另一方面,引入了客厅另一端的光线,客厅因此敞亮了许多。适当地压缩入口通道的宽度,能增加就餐区的面积,同时也能从视觉上扩大客厅的空间感受。客厅的主要区域布置了转角沙发以配合这种狭长的空间,长条形的装饰柜极大地丰富了过长的墙面。
还记得上次我们制作的那个转角沙发吗?已经存在了自己的模具库中,现在,把它调出来,略加修改,放置在客厅左边靠近推拉门处。
在转角沙发旁放置一个玻璃小圆几;在右下角放置一把休闲椅;用绘图工具自行制作装饰柜。电视机、音箱、DVD播放机等,全部放置在装饰柜里;在与长沙发相对的右上角,放置一个长矮柜;矮柜旁边是一把长椅与一个小茶几;最后在门边制作一个鞋柜。
3.替设计图着色
本设计图除承重墙用黑色标记,非承重墙与隔板用灰色标记,其余一律用本色,即白色。最后,为整个规划图添加标题“三口之家家居设计图”。主标题“字体”为黑体,“字号”为80。点击“视图→网格”菜单命令将网格隐藏来查看效果
四、将设计图纸与其他软件的集成
Visio还可以与其他软件共同使用,使用户调用数据和进行规划设计更加方便。
1.与AutoCAD交换数据
(1)导入CAD图
Visio允许直接插入AutoCAD创建的对象,该功能已经集成在了Visio的菜单里。下面,我们介绍一下导入AutoCAD对象并进行编辑的方法。
提示:Visio不能插入所有的AutoCAD对象。例如,Visio 2003就不可以插入AutoCAD 2004创建的对象。解决的方法是另存为低版本再插入。另外,Visio也不支持3D效果的CAD文件格式。
点击“插入→CAD绘图”菜单命令,在出现的对话窗口中选择CAD文件,点击“确定”按钮。出现“CAD绘图属性”对话框,在“常规”选项卡中,可以更改CAD绘图比例和单位。特别需要注意的是,“CAD绘图保护项”,如果三项全部选定,导入后就不允许更改图形的大小和位置,不允许删除图形,也不能查看范围。在“图层”选项卡中,可以设置图层的可见性、颜色和线条粗细。设置完毕,点击“确定”按钮即可导入。
注意:如果在导入时没有解除CAD绘图保护,导入后又希望对它进行编辑,可以右击该图形,选择“CAD Drawing对象→属性”命令进行更改。
(2)将CAD图转换成Visio图
如果希望把导入的CAD图像像Visio创建的图形一样编辑,可以将它转换成Visio图。右击该图形,选择“CAD Drawing对象→转换”命令。在出现的对话框中,可以有选择地转换某些层。
(3)将Visio图转换为CAD图
点击“文件→另存为”菜单命令,在“保存类型”中选择“AutoCAD绘图(*.dwg)”或“AutoCAD交换格式(*.dxf)”选项即可。
2.与Excel交换数据
你可以让Visio通过表格形式向你报告情况,还可以与Excel交换数据。
(1)在Visio中生成Excel报表
最简单的就是利用“墙壁、外壳和结构”模具库中的“门的明细资料”和“窗户的明细资料”。将这两个图标拖到绘图区,即会生成报告,列出门或窗的详细资料。这样,我们可以方便地查看设置是否正确,或者打印出来作为采购清单。这个表格与其他Visio创建的图形一样,可以放大缩小,还可以编辑、打开或转换成Excel表格,以方便其他程序调用。
右击该图表,选择“工作表对象→转换”菜单命令,在出现的对话框的对象类型中选择“Excel工作表”选项。然后双击该表格,就可以拷贝、编辑,或是将数据插入到其他程序中,例如,Word文档。
Visio共可生成22 种报告,当然我们并不完全需要。如果希望生成其他的报告,请选定需要生成报表的形状,然后点击“工具→报表”菜单命令,打开“报告”对话框,在左边的列表框中选择需要生成报表的资料。点击“新建”按钮,出现“报告定义向导”,选择要报告的对象,点击“下一步”按钮,再选择要在报告中显示为列的属性,再添加报告标题,保存报告定义。可选择“在本绘图中保存”或者选择保存路径。设置完毕后,点击“运行”按钮,即可生成Excel报表。
(2)利用Excel数据自动生成Visio图形
我们也可以利用Excel数据自动生成Visio图形。打开Excel应用程序,新建一个文档随便输入一组数据,保存Excel文件。例如下面所示的一组数据:
1 5000 2000
2 3000 4000
3 7000 5000
在Visio中点击“工具→加载项→建筑设计图→导入数据”菜单命令,在出现的“导入数据”对话框中点击“下一步”按钮,选择存储的Excel文件,点击“下一步”按钮。在出现“你要向绘图中添加哪种形状”对话框时,在“模具”下拉列表中选择对应的模具库,在下面的模具列表中选择需要转换的模具,然后点击“下一步”按钮。随后的标签、颜色、ID等项可根据需要自己设置,最后点击“完成”按钮,可以看到根据数据生成的形状已经出现在绘图区中了。
使用这个功能,可以方便地制作大型平面布置图,规划楼层布置等。









